Corporate Office Space
Address:
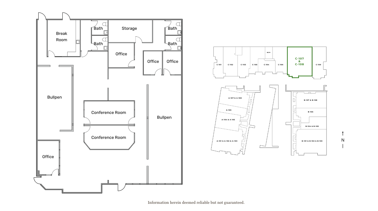
Suite C-107 & C-108
Price:
NNN:
Size:
Zoning:
Main Contact:
Upscale office design. Space includes private offices, conference rooms and bullpen areas. High end build out with a mixture of glass and sheetrock walls and other modern finishes. The adjacent suite, a ±3,191 SF wet lab — C-106, is also available for lease.
SUITE HIGHLIGHTS
- 5 private offices
- 2 large conference rooms
- 2 bullpen work areas
- 1 break-room with sink
- 4 private single-occupant restrooms
- 1 storage/supply room
- Spacious entry area
- Wood laminate flooring
- Sprinkled building
- Central HVAC
- Fiber optic internet
- Lease term: 5 years
PROPERTY HIGHLIGHTS
Davis Commerce Park, a dynamic community designed for innovation, productivity, and growth. Perfectly positioned to meet the diverse needs of modern enterprises, our park is home to a vibrant mix of lab, office, flex, gym, cannabis, science, and research tenants. Easily accessible by car, bus, walking, and biking, Davis Commerce Park is situated near numerous bike and walking paths. In addition to its convenient location, Davis Commerce Park is surrounded by a variety of restaurants, making it easy for employers, employees, and clients to grab a quick bite, enjoy lunch, or host a meeting. This center comprises three commercial buildings and offers flexible space to accommodate both small and large businesses.
- Zoned: PD – Planned Development (PD #2-84 Master CUP approval)
- Building size: 62,369 SF
- Lot size: ± 4.37 arces
- Strong street visibility
- Desirable location
- Easy parking
- 3 minutes from I-80
- Concrete tilt-up buildings
- Fiber optic internet access
- Natural gas
- Built in 1985
For property details, zoning, and parcel info, visit Sacramento County’s GIS Viewer: https://generalmap.gis.saccountynet/JSViewer/county_portal.html
Not quite what you’re looking for? Give us a call — we may have something else that fits your needs.
Information herein deemed reliable but not guaranteed. References to any values are approximate. Floor Plans and Site Plans are not to scale. Lessee should conduct independent verification of all matters deemed to be material.









